Janitor Room CAD Block: Essential Details

R.Womenininnovation 107 views
Janitor Room CAD Block: Essential Details

Janitor Room CAD Block: Essential Details

Hey guys! Let’s talk about something super practical for all you architects, designers, and drafters out there: the janitor room CAD block . You know, those essential, often overlooked spaces in any building design. Having a high-quality, detailed janitor room CAD block can seriously streamline your workflow and ensure you’re not missing any crucial elements in your plans. We’re diving deep into what makes a good janitor room CAD block, why it’s a must-have, and how it can elevate your design projects from good to great . Think of it as your secret weapon for creating functional, compliant, and well-thought-out building layouts. This isn’t just about a block; it’s about efficiency, accuracy, and making sure those often-hidden utility spaces are designed just as thoughtfully as the main areas. We’ll cover the nitty-gritty so you can confidently integrate these vital components into your next architectural masterpiece. Get ready to boost your productivity and impress your clients with meticulously detailed plans!

Understanding the Importance of a Detailed Janitor Room CAD Block

Alright, let’s get real for a sec. Why should you even care about a janitor room CAD block ? Isn’t it just a small closet? Nope, my friends, it’s so much more! In the world of architectural design and drafting, accuracy and completeness are king. A well-designed janitor room, even in the planning stages, is critical for the overall functionality and maintenance of any building. Think about it: where do cleaning staff store their mops, brooms, vacuums, cleaning chemicals, and other essential supplies? Where do they access water for mopping or refilling bottles? It all happens in the janitor room. Therefore, having a detailed CAD block that represents this space accurately saves you a ton of time and potential headaches down the line. Instead of drawing each fixture, sink, shelf, and door from scratch every single time, a pre-made block lets you drop in a complete, scaled representation with just a few clicks. This consistency ensures that all your janitor rooms across a project are standardized, meeting any relevant building codes or accessibility requirements. Plus, a detailed block often includes elements like a utility sink, storage shelving, a door swing, and even space for a small floor drain. These aren’t just cosmetic details; they are functional necessities that need to be accounted for in the initial layout. Missing these can lead to awkward spatial conflicts during construction or, worse, a janitor room that’s too cramped to be effective. So, while it might seem like a minor detail, investing a little time in finding or creating a quality janitor room CAD block is a smart move that pays dividends in efficiency and design integrity. It’s about building smarter, guys, and that starts with the right tools and details in your drawings.

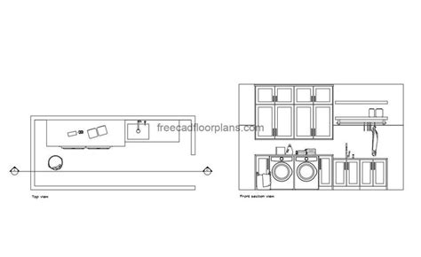
Key Components to Look For in a Janitor Room CAD Block

When you’re on the hunt for the perfect janitor room CAD block , what should you be looking for? It’s not just about a simple rectangle, trust me. A truly useful block is packed with the details that make a space functional. First off, scale and accuracy are paramount. Make sure the block is drawn to standard architectural scales (like 1 4 ”=1’-0” or 1:100) and that its dimensions are realistic for a typical janitor’s closet. You don’t want a block that’s unrealistically large or comically small. Next, consider the essential fixtures . A good janitor room CAD block must include a utility sink (also known as a janitor sink or mop sink). This is non-negotiable. Look for blocks that accurately represent the typical size and shape, possibly even with faucet details if you need that level of precision. Alongside the sink, storage solutions are key. Does the block show shelving ? This is where supplies are kept, so proper shelving representation is crucial. Some blocks might even include a small counter space or hooks for brooms and mops. Don’t forget the door . A clear indication of the door swing is vital for understanding circulation and ensuring adequate clearance within the room and adjacent corridors. Some blocks might even show a standard janitor closet door width. Accessibility is another factor. Depending on your project’s requirements (like ADA compliance), you might need a block that reflects a slightly larger footprint to accommodate accessibility standards for staff. Finally, think about layers and attributes . Professional CAD blocks are often organized with elements on different layers (e.g., walls, sink, shelving on separate layers). This makes it super easy to control visibility and line weights in your drawing. Blocks with attributes allow you to easily input information like room number or specific equipment details directly into the block instance. So, when you’re downloading or creating your own, keep these elements in mind. A block with these features isn’t just a drawing; it’s a functional design component that enhances the clarity and practicality of your architectural plans. Get the right block, and you’re already halfway to a perfectly planned utility space!

Why Generic Blocks Might Not Cut It

Now, I know what some of you might be thinking: “Why can’t I just draw a simple box?” or “I found a free generic closet block online, isn’t that good enough?” Guys, let’s be honest. While a basic shape might suffice for a quick sketch, relying on generic or poorly detailed blocks for professional work can actually cost you more time and create problems later. Generic blocks often lack the specific elements that define a janitor’s room. You might get a rectangle with a door swing, but where’s the utility sink? Where’s the shelving for supplies? Where’s the indication of water sources or drainage? Without these key details, your floor plan might look complete at first glance, but it won’t accurately represent the intended functionality. This can lead to RFI’s (Requests for Information) during construction, change orders, or even a janitor room that’s simply not workable once the building is occupied. Imagine a contractor trying to figure out where the mop sink goes because it wasn’t in the block – that’s a preventable delay right there! Furthermore, poorly drawn blocks can be a nightmare to work with. They might have messy lines, incorrect layers, be drawn at the wrong scale, or contain unnecessary hidden details that bloat your file size. Trying to clean up a bad block takes way more time than finding or creating a good one from the start. Standardization is another huge issue. If every janitor room in your project is represented by a slightly different, hastily drawn symbol, it looks unprofessional and can cause confusion. Using a consistent, detailed block across all your drawings ensures clarity and reinforces the quality of your design documentation. So, while a generic block might seem like a time-saver initially, it’s often a false economy. Investing in or creating high-quality, specific janitor room CAD blocks means fewer errors, smoother construction, more professional-looking drawings, and ultimately, a better-designed and more functional building. Don’t let the small details trip you up; get the right blocks to build it right!

Designing Functional Janitor Closets with CAD Blocks

So, we’ve established that janitor room CAD blocks are more than just simple symbols; they are critical tools for designing functional spaces. Now, let’s talk about how to use them effectively in your design process. When you’re laying out a floor plan, the placement of a janitor closet is often dictated by several factors: proximity to areas needing frequent cleaning, access to plumbing (water supply and drainage are key!), and ensuring it doesn’t interfere with main circulation paths. Using your chosen janitor room CAD block, you can visually represent these requirements clearly. Drag and drop the block into your drawing, and immediately you have a scaled representation of the space needed, including the sink and storage areas. This visual cue helps you avoid common mistakes, like placing a closet in a location that makes plumbing runs excessively long or complex. Think about the workflow within the closet itself. Does the door swing allow easy access to the sink and storage? Is there enough space to maneuver a mop bucket? A detailed block with accurate door swings and internal dimensions helps you answer these questions during the design phase, not after construction has begun. For example, if your block shows adequate space, you can be confident that cleaning staff will have the necessary room to work efficiently. If, however, you find that even with the block, the adjacent elements seem too cramped, it’s an immediate signal to adjust the layout. This proactive approach prevents costly revisions and ensures the building is truly user-friendly for maintenance staff. Furthermore, by using standardized blocks, you ensure consistency across multiple janitor rooms within a large project, whether it’s a hospital, school, or office building. This consistency aids in construction coordination and facility management. Remember, the goal isn’t just to check a box for ‘janitor closet’; it’s to design a functional, efficient, and accessible space that supports the building’s overall upkeep. Your CAD block is the first step in visualizing and achieving that goal with precision and ease. It’s all about making smart design decisions from the get-go, guys!

Integrating Janitor Room Blocks into Your Workflow

Integrating janitor room CAD blocks into your daily design workflow is surprisingly simple and incredibly beneficial. First things first, you need a reliable library of these blocks. You can find many online from reputable CAD resource sites, or if you’re feeling ambitious, you can create your own custom blocks tailored to your firm’s standards or specific project needs. Once you have your blocks saved, the integration is seamless. As you’re developing your floor plans, whenever you need to designate a janitor’s closet, simply insert your pre-made block. No more redrawing fixtures or guessing dimensions! This dramatically speeds up the drafting process. Think about it: instead of spending minutes (or even longer if you’re being meticulous) drawing a sink, counter, and shelves, you insert a fully detailed block in seconds. This time saved can be reallocated to more critical design aspects or simply allow you to meet tighter deadlines. Consistency is another major win. By using the same block for every janitor closet in a project, you ensure a uniform look and accurate representation across all your drawings. This professionalism is not lost on clients or construction teams. Moreover, well-constructed blocks often come with benefits like correct layering, which helps maintain organized drawings. If your block has attributes, you can even easily tag each janitor room with a unique ID or specific notes, further enhancing your documentation. For instance, if one janitor closet needs specialized ventilation or a larger sink, you can either use a different, more specialized block or modify the standard one easily, thanks to its organized structure. Ultimately, making janitor room CAD blocks a standard part of your toolkit means fewer errors, faster drafting, more professional output, and better-designed buildings. It’s about working smarter, not harder, guys, and leveraging the power of digital tools to their fullest. So, get those blocks ready and streamline your process!

Tips for Efficient CAD Block Management

Alright, let’s talk shop about managing your janitor room CAD block collection and other CAD assets efficiently. Because let’s face it, a disorganized library is almost as bad as having no blocks at all, right? First off, create a dedicated library folder . This is non-negotiable. Have a clear, logical folder structure on your network drive or cloud storage where all your blocks are saved. Something like CAD Library > Architectural Elements > Janitor Room works wonders. Keep it organized! Second, use consistent naming conventions . Instead of naming files janitor_block_final_v3.dwg , try something descriptive and standardized like JanitorCloset_UtilitySink_Shelving_1200x1500.dwg . This tells you exactly what’s in the block and its approximate size without even opening it. Third, purge unused blocks . Regularly clean out your drawing files and your library of any blocks you no longer use or that have been superseded. This keeps your files lean and your library manageable. Fourth, leverage CAD software features . Most CAD programs have tool palettes or design centers where you can easily organize, view, and insert blocks. Get familiar with these tools; they are designed to make your life easier! Dragging blocks directly from a palette into your drawing is lightning fast. Fifth, consider block attributes . As mentioned before, attributes add intelligence to your blocks. You can store information like room codes, area calculations, or specific equipment details directly within the block. Just ensure you have a system for managing and extracting this data if needed. Finally, share and standardize within your team . If you work with others, make sure everyone is using the same library and following the same management practices. This ensures consistency across all projects. Good block management isn’t glamorous, but it’s the backbone of an efficient CAD workflow. It saves you time searching, prevents errors from using outdated or incorrect blocks, and ensures your drawings are clean and professional. So, tidy up that digital toolbox, guys, and watch your productivity soar!

Conclusion: Elevate Your Designs with Smart CAD Choices

In wrapping things up, it’s clear that the humble janitor room CAD block , while seemingly minor, plays a significant role in the overall quality and efficiency of architectural design. By utilizing detailed, accurate, and well-organized CAD blocks, you’re not just saving time during the drafting process; you’re actively contributing to a more functional, compliant, and professional final design. Remember the importance of key components like utility sinks, adequate shelving, and correct door swings. Understand why generic blocks can lead to problems and choose blocks that reflect real-world needs and potential building code requirements. Integrating these blocks seamlessly into your workflow, supported by smart management practices, will undoubtedly streamline your projects and reduce the likelihood of costly errors or delays. Ultimately, making conscious, informed choices about the CAD assets you use, like a specific janitor room block, is a hallmark of an efficient and detail-oriented designer. It’s about building better, smarter, and faster. So, go forth, find those quality blocks, organize your library, and let them empower you to create even more impressive and practical designs. Happy drafting, everyone!